g

Gravida proin loreto of Lorem Ipsum. Proin qual de suis erestopius summ.

Recent Posts

Error: Formulario de contacto no encontrado.

Follow Us:
Back to top

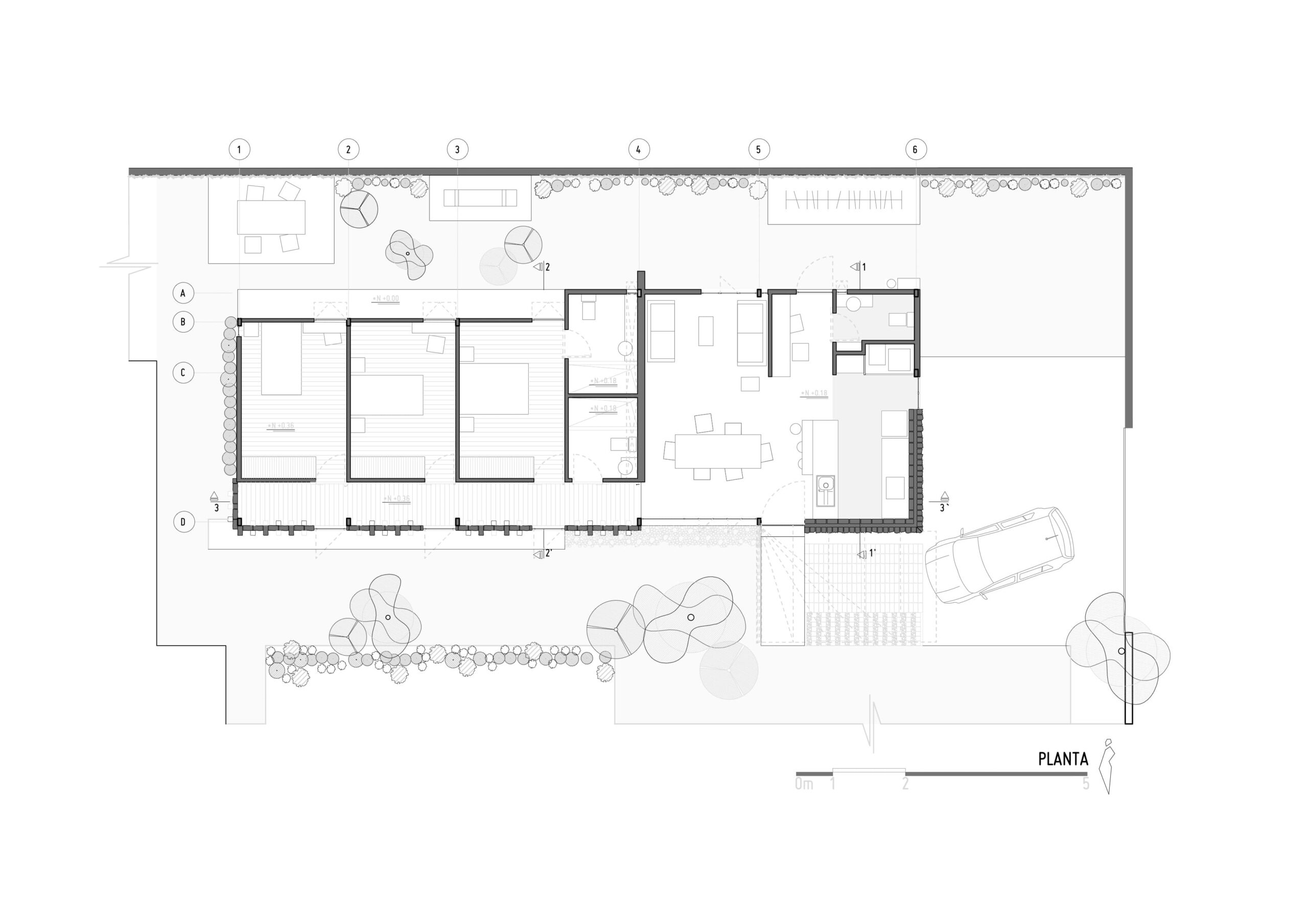
Casa Cuscungo

Casa Cuscungo es el resultado del primer encargo para el estudio. Hoy podemos compartir la culminación del proceso que comenzó como un acercamiento lleno de ingenuidad y aprendizaje colectivo.
Un objeto que redescubre el jardín previamente oculto, transformando la manera en que el usuario percibe el sitio sin alterar su esencia de habitarlo.

Construida

2019

Ubicación:

Ontaneda, Ecuador

Cliente:

Moni, Fer y Citlali

Colaboradores:

Roberto Vasco, Cristian Fernandez, Carolina Jurado, Sarahi Reyes, Carolina Vasquez, Martina Szymanska, Sebastian De la Torre, Camila Paez.

Fotografías:

JAG Studio

Publicaciones:

Tags: